





$200,000
13060 BARROW STREET, SPRING HILL, FL, 34609
MLS #
TB8477853
Property Type
House
Parcel #
R32 323 17 5130 0889 0090
Lot Size
0.23 sqft
Days on Market
30
Annual Tax
$2,115.9
About This Home
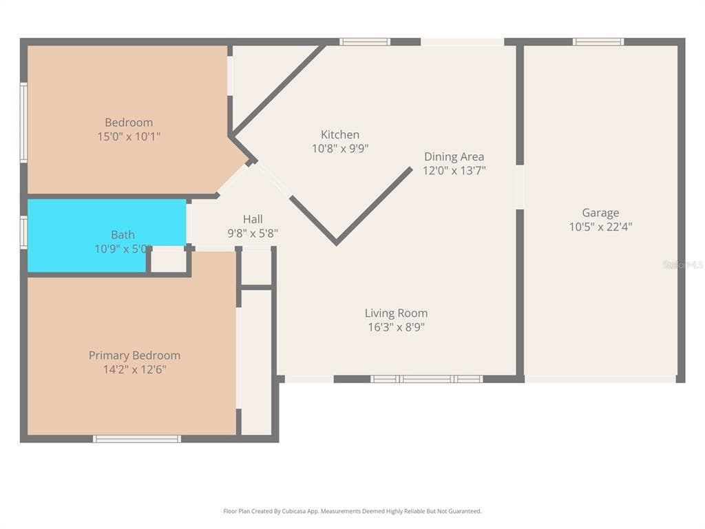
Under contract-accepting backup offers. Charming and move-in-ready 2-bedroom, 1-bath home. The home has been recently updated with new flooring throughout, plantation shutters, fresh interior paint, and a new front door that enhances curb appeal. The kitchen and bathroom have been tastefully updated, and the kitchen includes brand-new appliances. This well-maintained property features an attached 9-foot-wide one-car garage (with new opener) offering ample space for parking and additional storage. The roof is only one year old, providing added peace of mind. New hot water heater, sliding glass door, and impact-rated window. Situated on a quiet street while still being conveniently close to shopping, restaurants, coffee shops, and other everyday amenities. Ideal for first-time buyers, downsizing, or as an investment opportunity.
Price & Listing History
Pending — $200,000
+058103-02-21 · MLS# TB8477853
Location
Listing information is deemed reliable but not guaranteed. All measurements and data should be independently verified. IDX information is provided exclusively for consumers' personal, non-commercial use. © 2026 MLS. All rights reserved.




