





$1,750,000
3220 VILLA ROSA STREET, TAMPA, FL 33611
MLS #
TB8331782
Property Type
Single Family Residence
Parcel #
A0330183W4000000000490
Lot Size
0.15 sqft
Days on Market
454
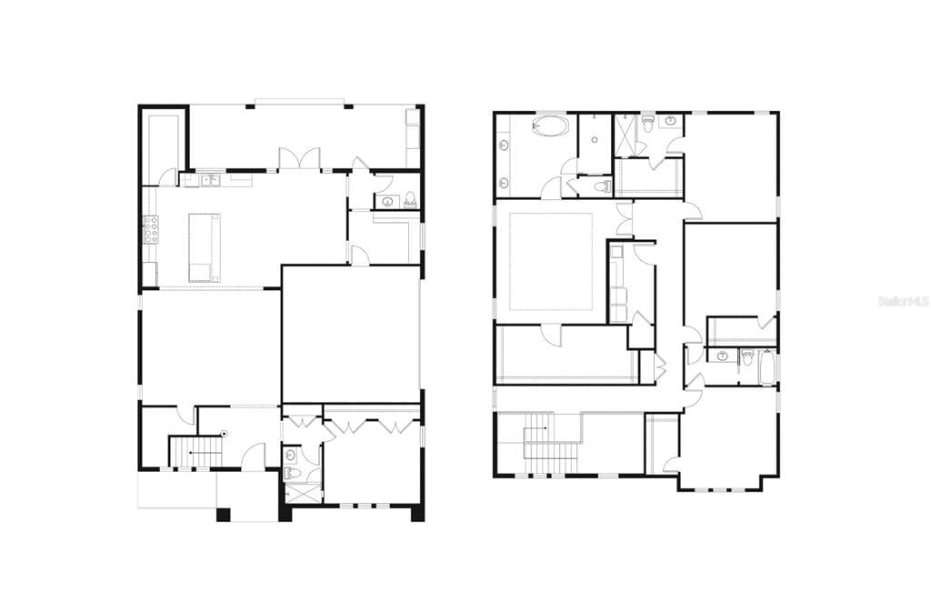
About This Home
Under Construction. Discover the perfect blend of luxury and functionality in this stunning new construction by Milana Custom Homes, located in the heart of South Tampa. This 2-story single-family home offers 3,679 square feet of meticulously designed living space, featuring 5 bedrooms, 4.5 bathrooms, and a 2-car garage. Enter through the inviting foyer, where you'll find a guest suite before being drawn into the expansive family room. The open-concept layout seamlessly connects the family room to the chef-inspired kitchen, complete with a large island and a spacious walk-in pantry. Adjacent to the kitchen is the dining room, which offers convenient access to the pool bath, a mudroom, and the garage. Step outside to your private oasis, featuring a covered lanai, sparkling pool, and a fully equipped outdoor kitchen, perfect for entertaining. The second floor is home to the luxurious primary suite, boasting a generous walk-in closet and an elegant primary bath with dual sinks, a soaking tub, and a separate shower. A centrally located laundry room adds convenience, while three additional bedrooms provide ample space for family or guests. One bedroom features an en-suite bath and walk-in closet, while the other two share a thoughtfully designed bathroom. With impeccable craftsmanship and attention to detail, this home is designed to elevate your lifestyle. Don't miss the opportunity to make this South Tampa gem yours!
Price & Listing History
Pending — $1,750,000
2024-12-19 · MLS# TB8331782
Location
Listing information is deemed reliable but not guaranteed. All measurements and data should be independently verified. IDX information is provided exclusively for consumers' personal, non-commercial use. © 2026 MLS. All rights reserved.






