





$1,399,900
2823 4TH AVENUE, Street PETERSBURG, FL 33713
MLS #
T3527361
Property Type
Single Family Residence
Parcel #
233116351180060141
Lot Size
0.13 sqft
Days on Market
670
About This Home
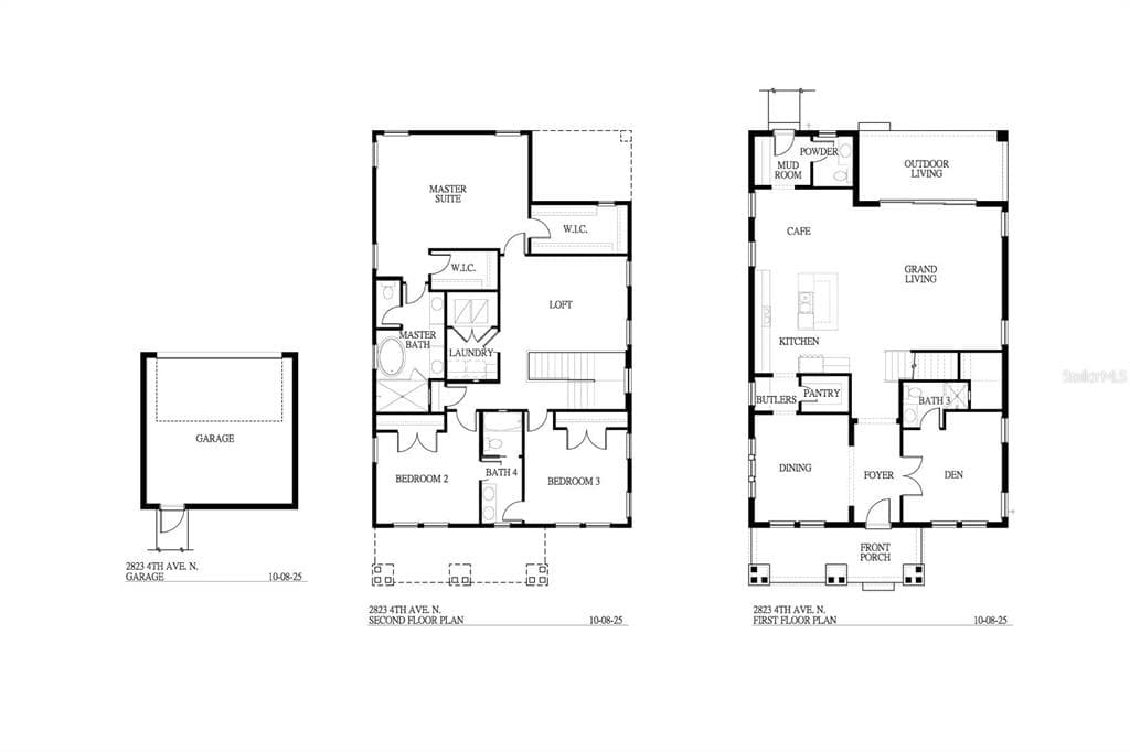
Under Construction. LUXURY NEW CONSTRUCTION BY MOBLEY HOMES CUSTOM LLC – TAMPA BAY’S PREMIER BUILDER – WITH NO FLOOD INSURANCE REQUIRED! Built with hurricane-rated half concrete block construction on the first floor, this Mobley Homes Custom LLC residence delivers timeless design, high-end finishes, and energy-efficient durability in one of St. Pete’s most vibrant and artistic neighborhoods: Historic Kenwood. CONCRETE BLOCK CONSTRUCTION ADVANTAGES Hurricane resistance: Superior protection against high winds and flooding Durability: Strong, long-lasting structural integrity Pest resistance: Naturally resistant to termites and other pests Lower insurance premiums: Often more affordable than wood frame homes Located on a quiet residential street in the heart of St. Petersburg’s Artist Enclave District, this home blends the comfort of modern construction with the charm and character of a nationally recognized historic community. Historic Kenwood is known for its classic 1920s bungalows, walkable tree-lined streets, colorful murals, and welcoming creative culture. Enjoy urban living with true walkability—just steps from Central Avenue’s locally owned restaurants, breweries, coffee shops, art galleries, and vintage boutiques. You're only minutes from Downtown St. Pete, the waterfront, and have quick access to I-275, St. Pete Beach, and Tampa International Airport. This 4-bedroom, 3.5-bath home features a spacious open-concept layout, high ceilings, Level 4 smooth drywall throughout, and abundant natural light. The spa-like primary bath showcases 12x24 Asian Statuary Marble from TileBar, offering both luxury and serenity. The gourmet kitchen includes designer cabinetry, premium countertops, a large center island, and high-end stainless steel appliances—ideal for entertaining and daily living. The fully fenced backyard includes alley access and a 2-car garage, with ample space for a future pool, summer kitchen, or outdoor entertaining area. BUILT WITH PEACE OF MIND BY MOBLEY HOMES CUSTOM LLC All homes are owned entirely by Mobley Homes Custom LLC. Mobley Homes Custom LLC does not build for third-party investors on their lots, and your home will be sold directly to you, ensuring a smooth and accountable process. Should any warranty needs arise, you’ll work with the builder directly—not a one-off investor or empty LLC—providing confidence, long-term support, and superior quality. As a buyer in the State of Florida, it is important to purchase your new home from the company that pulled the permit and built your home for you. Schedule your private showing today! Photos shown are of a similar home with the same layout. Final finishes, colors, and features may vary.
Price & Listing History
Pending — $1,399,900
2024-05-17 · MLS# T3527361
Sold — $750,000
2024-04-07 · MLS# U8237842
Location
Listing information is deemed reliable but not guaranteed. All measurements and data should be independently verified. IDX information is provided exclusively for consumers' personal, non-commercial use. © 2026 MLS. All rights reserved.





