





$269,000
6460 GLENCOE Street, INVERNESS, FL 34452
MLS #
OM716096
Property Type
Single Family Residence
Parcel #
20E19S290010033000110
Lot Size
0.22 sqft
Days on Market
71
About This Home
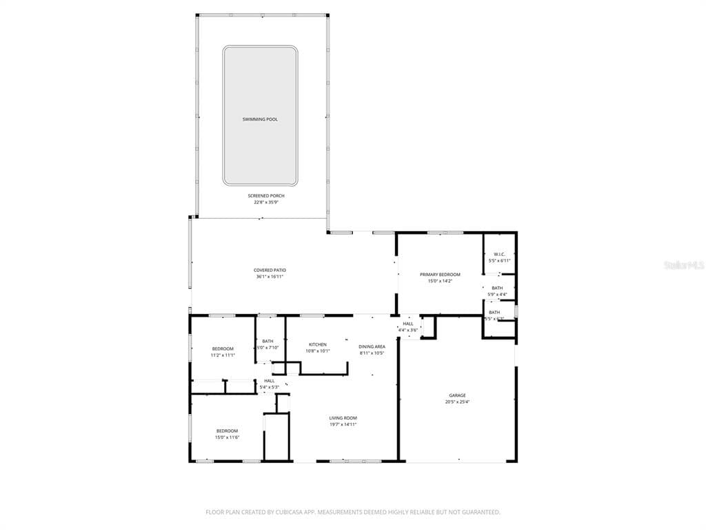
Inverness Airbnb Opportunity or Perfect Personal Retreat! Discover this 3/2/2 turn key pool home in Inverness Highlands South—whether you're looking to take over a successful short-term rental or enjoy the property for yourself, the options make this an exceptional value. Built in 1979 with 1,377 sq. ft. of living space, this home offers comfort, functionality, and a desirable Florida lifestyle for only $269,000. Interior highlights include a split floor plan, a well-appointed kitchen with Corian countertops, wood cabinetry, and appliances, plus an inviting owner’s suite featuring a walk-in closet. Enjoy no carpet throughout for easy maintenance and durability. The exterior features a screened pool, covered lanai, updated roof (2023), updated water heater, rear privacy fencing, fruit trees, and a spacious two-car garage. Situated close to local parks, lakes, the Withlacoochee State Trail, schools, medical facilities, restaurants, and charming downtown Inverness. Don’t delay—schedule your tour today!
Price & Listing History
Pending — $269,000
2026-01-08 · MLS# OM716096
Off Market — $279,000
2025-12-01 · MLS# OM713866
Location
Listing information is deemed reliable but not guaranteed. All measurements and data should be independently verified. IDX information is provided exclusively for consumers' personal, non-commercial use. © 2026 MLS. All rights reserved.






