





$289,000
248 HEMINGWAY DRIVE, OLDSMAR, FL 34677
MLS #
TB8471386
Property Type
Land
Parcel #
142816865890000052
Lot Size
0.08 sqft
Days on Market
44
Annual Tax
$240
About This Home
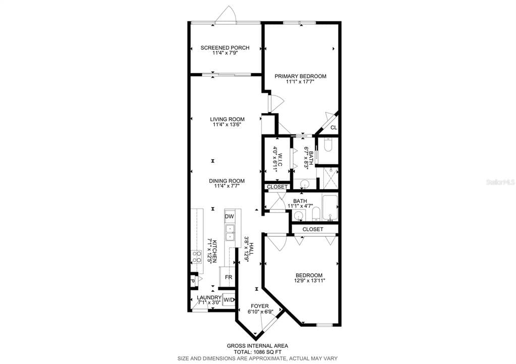
Under contract-accepting backup offers. Experience the best of Florida living—without the worry of flooding! This beautifully maintained 2-bedroom, 2-bath townhome is proudly NOT located in a FLOOD ZONE, offering you peace of mind, lower insurance costs, and a safe haven to call your own. Nestled within the highly sought-after Sun Ketch Townhomes at Cypress Lakes, this home welcomes you with a charming, tree-lined neighborhood where mature Magnolias and impeccable landscaping create a serene, resort-like ambiance. From the moment you arrive, you’ll feel the calming blend of natural beauty and thoughtful design, perfectly crafted for a lifestyle of ease and comfort.. Built with solid block and stucco construction, this home offers both enduring quality and timeless curb appeal. Step inside to discover soaring ceilings and continuous laminate flooring, creating a light, airy ambiance that feels instantly inviting. Thoughtfully selected leaf-inspired ceiling fans add a touch of elegance and coastal charm throughout the home. The living room is designed for both comfort and style, featuring custom cutouts for your TV and electronics along with a decorative niche—perfect for showcasing art, photos, or treasured keepsakes. The galley-style kitchen is equipped with stainless steel appliances, including range, microwave, and refrigerator, and flows seamlessly into a cozy dining area ideal for everyday meals or intimate gatherings. Unwind in the spacious primary suite, complete with an en-suite bathroom that offers privacy and tranquility. An indoor laundry area with stacked washer and dryer, conveniently located near the kitchen, enhances everyday ease. Through sliding glass doors, the living space opens to a generous screened-in patio—your own private retreat. Whether you’re enjoying morning coffee, evening breezes, or envisioning a future hot tub, this space invites you to relax and savor the Florida lifestyle. The vinyl privacy fence, complemented by a chain-link section, preserves serene views of the peaceful pond while providing a secure yard for pets to play freely. Residents enjoy access to a sparkling community pool, perfect for soaking up the sun or connecting with neighbors. Ideally located just 28 minutes from downtown Tampa and close to Gulf Coast white-sand beaches, state parks, shopping, dining, and medical facilities, this home delivers the perfect blend of serenity and convenience. This is more than a home—it’s a lifestyle. Come experience it for yourself!
Price & Listing History
Pending — $289,000
2026-02-02 · MLS# TB8471386
Location
Listing information is deemed reliable but not guaranteed. All measurements and data should be independently verified. IDX information is provided exclusively for consumers' personal, non-commercial use. © 2026 MLS. All rights reserved.






